Gå til: Plantegninger | Fasade | Kontaktskjema
206 – BALANSE
KLASSISK SJARM OG MODERNE KOMFORT
Velkommen til Balanse – en bolig der klassisk sjarm møter moderne funksjonalitet. Hjemmet har en gjennomtenkt planløsning med åpne og luftige rom, store vinduer som slipper inn rikelig med dagslys, og en innbydende stue- og kjøkkensone på 34 m².
Den lune loftstuen i andre etasje gir boligen en ekstra sone som kan brukes til alt fra lek og avslapning til hjemmekontor. Uteområdet legger til rette for hyggelige stunder utendørs, enten det er på en liten terrasse eller i hagen.
Balanse har fleksible løsninger og god romfølelse, og passer perfekt for familier i ulike livsfaser – fra småbarnsperioden til tenåringsliv og videre.
TEKNISK DATA
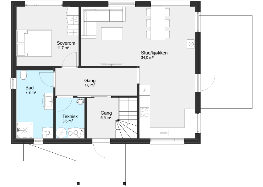
PLANTEGNINGER
ØNSKER DU MER INFORMASJON?
FYLL UT SKJEMAET, SÅ KONTAKTER VI DEG FOR EN HYGGELIG BOLIGPRAT
ARKITEKT
ALT KAN TILPASSES FOR Å IMØTEKOMME DERES ØNSKER OG BEHOV
Fordelene med å bygge et helt nytt hus, er at du kan få det akkurat slik som du vil. Trolig finner du en husmodell i vår katalog som kan passe, men kanskje ønsker du å tilpasse boligen etter egne ønsker og behov.
Vi vil gjøre vårt ytterste for at du skal bli fornøyd, og hjelper deg hele veien fra idé til ferdig bolig. Vi har fagkunnskap og gir gode råd for at du skal få bygget en bolig som passer deg helt perfekt.»








