Gå til: Plantegninger | Fasade | Kontaktskjema
213 – CASA
INNHOLDSRIK OG PRAKTISK
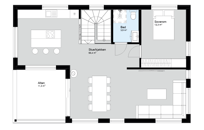
Casa er en moderne funkisbolig med en åpen og luftig hoveddel, i tillegg til en egen utleiedel. Den store stue- og kjøkkenløsningen gir god plass til felles måltider og sosiale sammenkomster, mens de tre soverommene og to badene gir praktiske rammer for familielivet.
Utleiedelen er smart integrert og kan enten gi ekstra inntekt, eller enkelt bygges inn som en del av hovedboligen dersom behovene endrer seg.
Med egen utgang fra vaskerommet, god bodplass og tydelig soneinndeling er Casa en bolig som gir deg mange muligheter – både i hverdagen og på sikt.
TEKNISK DATA
PLANTEGNINGER
ØNSKER DU MER INFORMASJON?
FYLL UT SKJEMAET, SÅ KONTAKTER VI DEG FOR EN HYGGELIG BOLIGPRAT
ARKITEKT
ALT KAN TILPASSES FOR Å IMØTEKOMME DERES ØNSKER OG BEHOV
Fordelene med å bygge et helt nytt hus, er at du kan få det akkurat slik som du vil. Trolig finner du en husmodell i vår katalog som kan passe, men kanskje ønsker du å tilpasse boligen etter egne ønsker og behov.
Vi vil gjøre vårt ytterste for at du skal bli fornøyd, og hjelper deg hele veien fra idé til ferdig bolig. Vi har fagkunnskap og gir gode råd for at du skal få bygget en bolig som passer deg helt perfekt.»








