Gå til: Plantegninger | Fasade | Kontaktskjema
311 – LEPSØY
ELEGANT HYTTE
Lepsøy er en stor og luksuriøs hytte med en spennende fasade bestående av glass, fasadeplater og liggende kledning. Takplater i stål bygger opp om den moderne fasaden og skaper en gjennomført, stilren hytte.
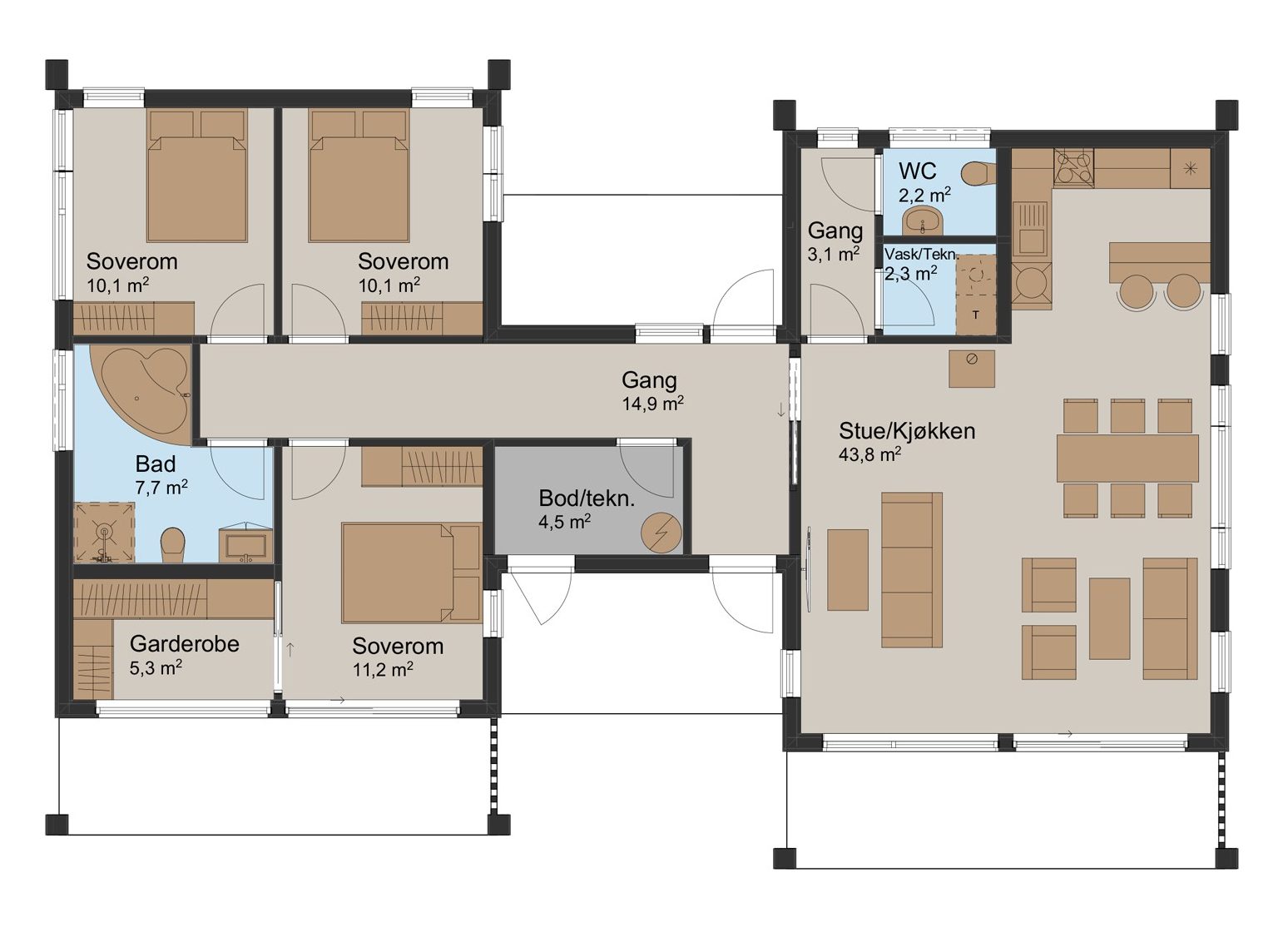
Inngangsdøren fører deg til et inngangsparti/gang der du kan velge å gå mot oppholdsrommet i den ene enden av hytta – eller mot soveromsfløyen i den andre. Du kan også velge å gå direkte gjennom inngangspartiet og ut til terrassen på fremsiden av hytta, som er delvis overbygd. I gangen finner du en bod/teknisk rom med gjennomgang til uteområder. Vinduene ved inngangsdøren skaper et inngangsparti som er lyst og trivelig.
Vi går inn i hyttens allrom, en stor og lys stue-/kjøkkenløsning på hele 44m2. Det første du ser, er glassfasaden mot naturen utenfor. Her lar den åpne himlingen vinduene gå helt opp i mønet, og man får en følelse av at naturen utenfor går i ett med oppholdsrommet. En skyvedør i glass kan åpnes og lar deg gå ut på den overbygde terrassen utenfor. Et perfekt sted å tilbringe varme sommerdager.
I stuen får du plass til en stor spisegruppe, en sittegruppe med flere sofaer og stoler, og en hyggelig tv-krok for å kunne se påskekrim eller julenøtter mens du nyter fritiden din på hytten. Kjøkkenet er plassert til høyre i allrommet, og er romslig nok til en kjøkkenøy i tillegg til alt annet du trenger for å lage mat. Fra allrommet har du tilgang til et lite toalett og en bod/teknisk rom gjennom en gang i venstre bakdel av stuen.
Vi går inn i soveromsfløyen, der tre store soverom er tilgjengelige fra gangen. Det er høyt under taket, og moderne vindusløsninger skaper lyse og luftige rom hvor det er godt å slappe av. Et romslig bad er plassert midt i fløyen, hvor man kan nyte et varmt bad med utsikt til naturlige omgivelser utenfor hytten. Hoved-soverommet har en tilhørende garderobe, som har god plass til både sommer- og vinterklær. Fra dette rommet har du også direkte-tilgang til terrassen utenfor, hvor det er deilig å kunne drikke en kopp kaffe – i fred og ro før dagen begynner.
Rene og moderne linjer skaper en hytte som skiller seg ut, og som slipper naturen inn gjennom forseggjorte vindusløsninger.
Begregnet for flat tomt.
TEKNISK DATA
PLANTEGNINGER
ØNSKER DU MER INFORMASJON?
FYLL UT SKJEMAET, SÅ KONTAKTER VI DEG FOR EN HYGGELIG BOLIGPRAT
ARKITEKT
ALT KAN TILPASSES FOR Å IMØTEKOMME DERES ØNSKER OG BEHOV
Fordelene med å bygge et helt nytt hus, er at du kan få det akkurat slik som du vil. Trolig finner du en husmodell i vår katalog som kan passe, men kanskje ønsker du å tilpasse boligen etter egne ønsker og behov.
Vi vil gjøre vårt ytterste for at du skal bli fornøyd, og hjelper deg hele veien fra idé til ferdig bolig. Vi har fagkunnskap og gir gode råd for at du skal få bygget en bolig som passer deg helt perfekt.»






